+86-757-88809016
sales@gd-ylj.com
English
English
简体中文
ไทย
Filipino
Kiswahili
Français
Deutsch
لالعربية
Kreyòl Ayisyen
Bahasa Melayu
Українська
Español
Home
About Us
Product
Curtain wall profiles
Hidden Frame Curtain Wall
Visible Frame、Hidden Frame、Semi Hidden Frame Curtain Wall
Visible Frame Curtain Wall
Semi Hidden Frame Curtain Wall
Home Furnishing Profiles
Side hung window series
Sliding door and window series
Windows and doors
Sliding Window Series
Side hung window series
Door Series
Conventional standard profiles
Insulated windows and doors
External casement window
Internal casement window
Internal (external) casement window
External swing door
Internal swing door
Sliding window
sliding door
News
Company news
Case
Honor
Contact Us
Product
Home
>
Product
>
Curtain wall profiles
>
Hidden Frame Curtain Wall
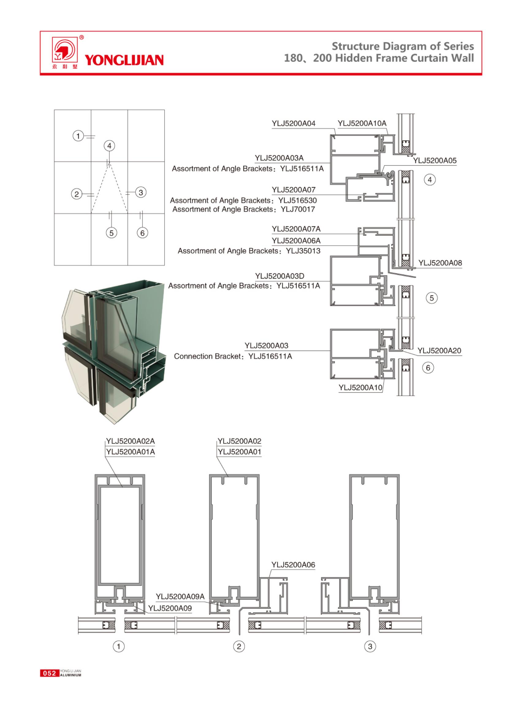
180、200 Hidden Frame Curtain Wall
Product Inquiry
100-170 Hidden Frame Curtain Wall
No.
Product Details
Product Inquiry
Online Services
sales@gd-ylj.com
+86-757-88809016